The $250 million Central Park Tower penthouse has the world asking: Is there actually a buyer out there? Gary Barnett, president and founder of Extell Development, seems to think so.
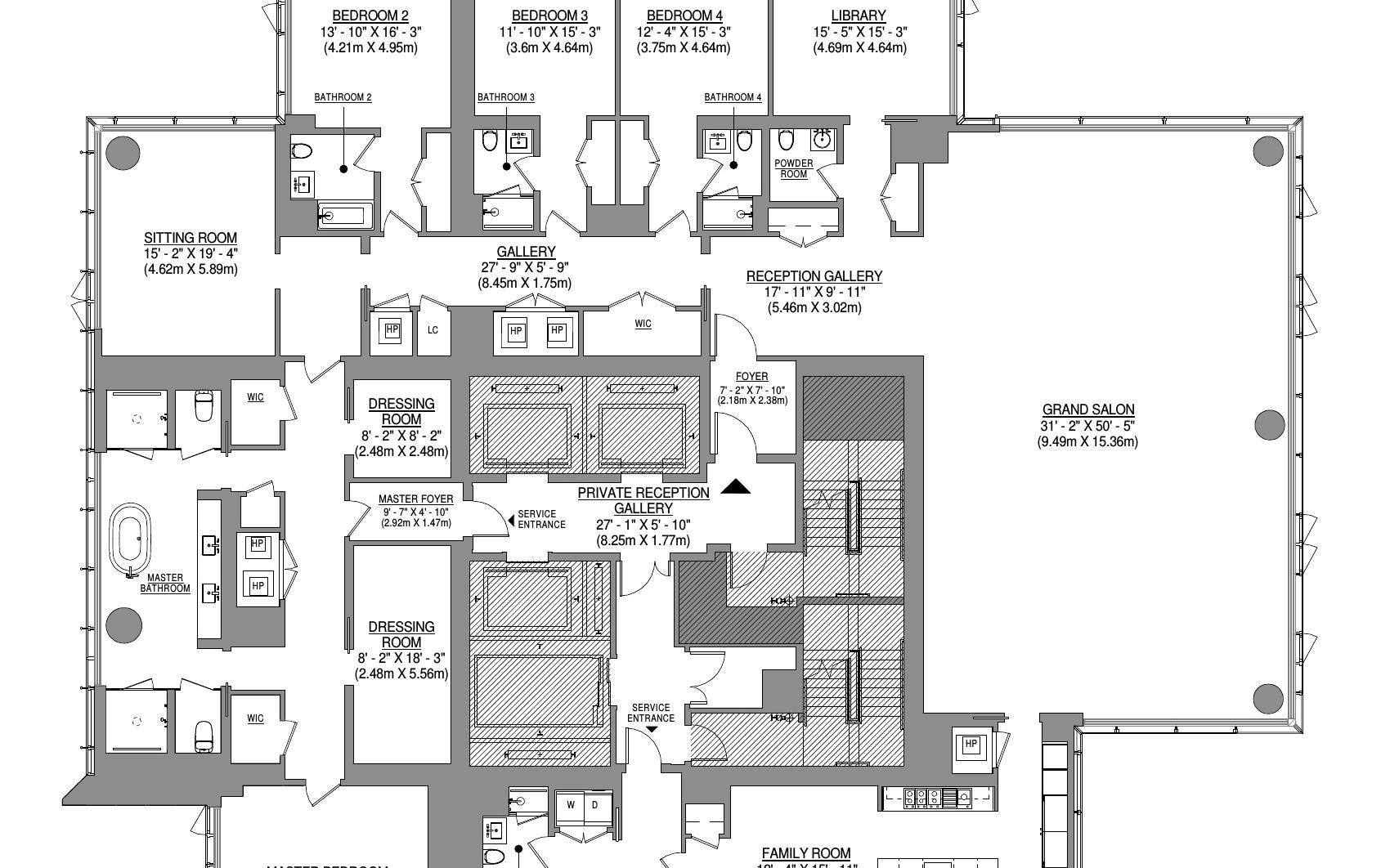
This triplex mansion spans 17,545 square feet and has a 1,433 square foot terrace. It has a 27-foot wall of windows showcasing just about the entire tri-state area, along with seven bedrooms, eight bathrooms, and two kitchens. Topping it off is a 1,500-square-foot grand salon and a 2,000-square-foot ballroom. Plus, at 1,416 feet in the sky, the penthouse has the highest elevation of any residence on the planet.
If sold at the full ask, the listing, repped by Ryan Serhant, would set a new record for the most expensive residential sale in the city’s history, beating Ken Griffin’s $240 million penthouse at 220 Central Park South in 2019.

Can the NYC real estate market support a $250M deal?
There were several big Billionaire’s Row deals so far in 2022, but nothing near $100 million, let alone $250 million. There’s also been a nearly 15% decline in sales above $10 million compared to 2021, according to Marketproof data, though activity remains on par with 2019 (pre-pandemic).
Below is a look at the top five new development condo sales so far in 2022, with discounts ranging from 10-30% from the asking price. Note that even if the Central Park Tower penthouse sells at a 30% discount (to $157 million), similar to recent closings in the building, it would still be one for the record books.
(Click to expand all photos and floorplans)
Top five sales in 2022
5. $46,958,752 at Central Park Tower

Though Central Park Tower’s Unit 125, a 6,700-square-foot condo, took a -29% price cut, that isn’t necessarily a bad omen for Barnett. The five-bed, five-bath home still achieved $7,009 per square foot. It was last listed for $66,250,000, at $9,888 per square foot. See it here >>
4. $48,489,876 at Central Park Tower

Comprising 7,074 square feet, this condo (also in Central Park Tower) is 300 square feet larger than the one above. It has five beds and 5 1/2 baths but also lacks the pièce de résistance — a terrace. The home was last listed for $65,750,000, at $6,855 per square foot, and sold on May 23. See it here >>
3. $53,385,224 at Aman New York

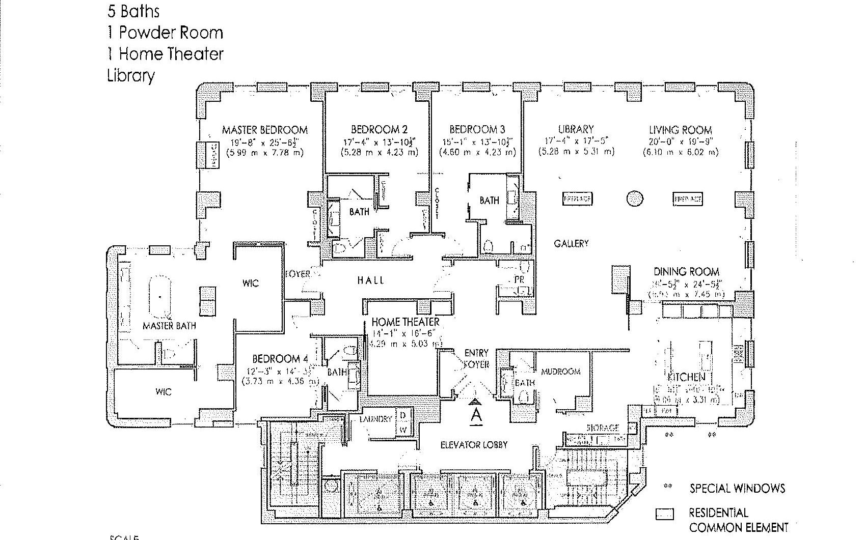
This four-bed, six-bath home is 6,287 square feet. Located atop the Aman New York, dubbed the city’s most expensive hotel, it has a library and a home theater for movie nights but no private outdoor space. The condo was last listed for $59,466,000, at $8,491 per square foot, and sold on July 27. See it here >>
2. $56,164,524 at Aman New York

Like the $250 million Central Park Tower penthouse, this 6,296-square-foot home also spans three floors. There’s no terrace, but it does have a home theater, plus five beds and five baths. It was last listed for $56,164,524, at $12,285 per square foot, and sold on May 13. See it here >>
1. $75,891,560 at Aman New York

Closing out our list is this 6,800-square-foot, four-bed, five-bath home. It may not be a triplex nor have any notable interior features, but it has — you guessed it — outdoor space. The condo has not one but two terraces, one a whopping 3,458 square feet. It closed with a -9% discount from its last list price of $8,538,000 at $12,285 per square foot. See it here >>
Getting started with Marketproof
With Marketproof New Development & Condo, you can access available inventory, past sales, and more. You can also see the pipeline of future projects. Create an account today, and get a 7-day free trial.
Marketproof New Development
Read about Manhattan’s Secret condos.
Read about Manhattan’s $8M super’s unit.
Marketproof Pro
Marketproof Pro combines property data, ownership records, market analytics, and AI-powered marketing tools in one place. Search buildings and addresses, look up owners, track sales trends, and create branded reports.


